REAL ESTATE DETAIL
藤沢市遠藤824-22 土地条件なし
JR東海道本線「辻堂」駅 バス18分停歩8分
販売価格3,590万円
RECOMMEND
POINT
この物件のオススメポイント
- 仲介手数料半額
- 新着物件
- オススメ物件
★★新規物件情報★★
仲介手数料半額!
本物件は、南道路に面した整形地のため、日当たり・通風ともに良好な住環境が魅力です。
周囲は落ち着いた街並みが広がる閑静な住宅地で、穏やかな暮らしを求める方に適した立地となっています。
敷地形状が整っているため、建物プランの自由度が高く、
敷地全体を有効に活用した住まいづくりが可能です。
また、建築条件なし売地のため、ハウスメーカーや工務店を自由に選択でき、
ライフスタイルやご家族構成に合わせた理想の住まいを実現できます。
周辺にはスーパー・コンビニ・医療施設・教育施設など、
日常生活に欠かせない施設が揃っており、生活利便性も良好。
住環境と利便性のバランスが取れた、長く安心して暮らせる住まいの候補地です。
AROUND PHOTO
藤沢市遠藤824-22 土地条件なし / 周辺施設写真
PROPERTY OVERVIEW
藤沢市遠藤824-22 土地条件なし / 物件概要
| 所在地 | 藤沢市遠藤824-22 | ||
|---|---|---|---|
| 交通1 | JR東海道本線「辻堂」駅 バス18分「湘南ライフタウン」停歩8分 | ||
| 交通2 | 小田急江ノ島線「湘南台」駅 バス15分「南原」停歩5分 | ||
| 価格 | 3,590万円 | ||
| 物件番号 | 531117 | 物件種別 | 土地条件なし |
| 販売区画数 | 全11区画 今回販売1区画 | 土地面積 | 133.58㎡ (公簿) |
| 接道状況 | 南 4.00M道路に7.30M接道 | 土地権利 | 所有権 |
| 都市計画 | 市街化区域 | 地目 | 宅地 |
| 用途地域 | 第一種低層住専 | 建ぺい率 | 50% |
| 容積率 | 80% | 建築条件 | 建築条件なし |
| 現況 | 更地 | 引渡し時期 | 相談 |
| 引渡し条件 | 現況渡し | 取引態様 | 媒介 |
| 学区 | 滝の沢小学校 910M 滝の沢中学校 550M |
||
| 設備 | 上水道/公営水道 下水道/本下水 ガス/都市ガス 電気/東京電力 |
||
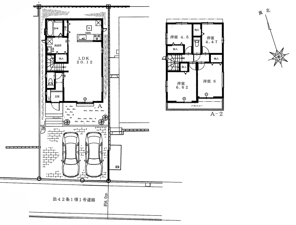
| 備考 | 本物件は、現時点では建築条件なし売地として販売しておりますが、 令和8年3月中旬頃に建築確認取得予定となっており、 取得後は建売住宅としての販売に変更予定です。 建売販売時の予定価格は、土地・建物合計5,190万円(税込)。 建物は長期優良住宅仕様を予定しており、 間取りは4LDK、建物面積は 1階:51.13㎡/2階:47.20㎡ 合計:98.33㎡ となります。 ※建築確認取得前につき、建物プラン・仕様・価格等は変更となる場合があります。 ※詳細については、お気軽にお問い合わせください。 |
||
| 法令上の制限 | 建築基準法第22条区域、景観法、宅地造成及び特定盛土等規制法、特定都市河川浸水被害対策法 | ||
LOAN CIMULATION
藤沢市遠藤824-22 土地条件なし / ローンシミュレーション
物件価格
万円
建物参考価格
万円
金利
%
頭金
万円
ボーナス回数
回
ボーナス加算額
万円
返済期間
年
毎月の返済額
※こちらのローンシミュレーションは試算の為、実際のご返済額とは
異なる場合がございますので詳しくは、お問い合わせください。
※諸費用は、別途かかります。詳細に関しましては、お問い合わせください。
ACCESS MAP
藤沢市遠藤824-22 土地条件なし / アクセスマップ
上記の物件に似ている物件












